Deep-Six was incorporated in 1970 as a full scuba/instruction shop. Thirty years ago, George Campbell became a certified Endless Pool installer and the business has become almost entirely pool construction and maintenance. He has many clients in the Hudson Valley and beyond.
ABOUT US
Deep-Six
Underwater Systems, Inc.
Endless Pools is an amazing product that will extend your life. Deep-Six installs and maintains these current generated lap pools and the FastLane (r) for swimming year round.
Our Services
From sparkling new pools to expert upkeep, we handle it all.
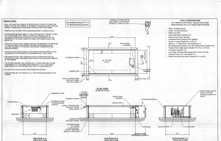
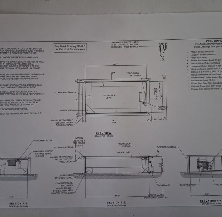
Endless Pool Installation
















Deep-Six Underwater Systems has worked with Endless Pools for over 30 years during the installation, maintenance, and construction process. Endless Pools assists us by shipping, delivering, and supporting. They provide you with warrantees and guarantees.
Deep-Six is a Factory Installer for Endless Pools. When we install a pool, this is what that convenience affords the customer:
Assistance with unpacking the crates
Assistance with short distance (less than 50') transport of components to the pool area
Assembly of the pool panels on an acceptable base
Placement, alignment and stabilizing the panels so there will be little flexing when water is added
Drilling any holes for jets and/or lights using customer recommended locations
Insulating the wall panels that do not have drilled holes (Rigid insulation paid for by customer)
Installing whatevertype of liner hanger that has been selected by the customer
Complete caulking of the pool where needed (Caulk paid for by customer)
Pool liner measurements taken and faxed to Endless Pools (for custome liners only)
Cleaning of pool interior
Installation of felt padding
Installation of vinyl pool liner
Installation of propusion housing, interior benches, and mirror (if ordered)
Introduction of water - a steady source of water is needed such as through a garden hose
Cutting the liner to accomodate all through-wall fittings
Installation of through-wall fittings, hoses, unions and plugs
Completion of pool water filling
Complete set-up of the water quality system
Set-up of the jet system poum and valves
Insulation of remaining panels that have through-wall fittings
Installation of pool on-off switches and meters
Installation of the hydraulic system
Installation of aluminium or synthetic coping with wood substrate
Installation of the pool cover
All work is guaranteed to produce an Endless Pool that performs as advertised. Although it is rare, problems should occur that are obviously the fault of Endless-Pools or Deep-Six Underwater Syatems, Inc. within 30 days following installation, they will be corrected.
Deep=SIx Underwater Systems, Inc. tries to provide the customer with an accurate estimate of the possible project start date. This date will be within a day or two, and the customer's schedule will be an important part of the prediction. The start date depends on expected pool component delivery, the expected seasonal weather patterns, the completion of site preparation, and our other customer needs.
If you would like Deep-Six Underwater Systems, Inc. to install your Endless Pool, the expected start date, based upon the above considerations, will be mutally agreed upon by the installer and the buyer.
Outdoor Installation
Indoor Installation


Fastlane
Swimming in place allows athletes to concentrate on their stroke mechanics without the interruption of flip turns.
The underwater camera allows coaches to closely evaluate the underwater portion of a swimmer's stroke.
For those suffering from arthritis, fibromyalgia, MS, osteoporosis, and orthopedic injuries, water therapy has become an essential part of building strength and range of motion while minimizing pain. Since the water supports an individual's weight, it is possible to strengthen and tone muscles without putting stress on joints. In addition, water therapy helps decrease swelling and increase circulation, endurance, flexibility, range of motion, balance and coordination. The convenience of having a place for therapy at home facilitates multiple therapy sessions a week and even a day, if needed, without time-consuming travel, limited hours or crowded public pools.
In addition to providing a place for serious exercise, the Fastlane can be fun for the whole family. Everyone, including children with proper supervision, will enjoy playing and relaxing in the current. In fact, now that they have a Fastlane, many of our customers say they can't get their kinds out of the pool.
The average home pool is a great place to cool off, splash around and socialize, but not for swimming and exercise- six or eight strokes bring you to the end where you must turn and start over. The Fastlane is a swimming current generator for your existing pool, like a treadmill, that allows you to swim for miles without moving an inch. Easily installed in virtually any pool, the Fastlane creates a smooth current that is wider than your body and deeper than your stroke. Ideal for swimming, aquatic exercise and rehabilitation, the Fastlane makes exercise easy and fun. The unique Fastlane system produces a non-turbulent current that can be set to a speed to suit any swimming or exercise ability. Anyone can learn to use the Fastlane in moments, regardless of age or fitness level. The Fastlane's highest speed challenges to most competitive swimmer, yet the current can easily be adjusted to suit the beginner and everyone in between.
The Fastlane hangs from the side of the pool much as a pool ladder does, and like a pool ladder can be incorporated into virtually any swimming pool. The system has two parts: a remotely located hydraulic Power Unit that powers the swim current and the stainless-steel Fastlane Swim Unit that mounts poolside. These components are connected by tow 1/2" inside diameter hydraulic hoses designed to keep electricity far away from the water. The poolside Fastlane Swim Unit includes a waterproof hydraulic motor that turns our custom-designed 16" propeller and an innovative channeling system that straightens and smooths the swim current. The rugged 5 horsepower Power Unit can be located 200' from the pool, optimally with your other pool equipment. We offer a weatherproof hood should it be placed outside. The Fastlane comes with 5 gallons of biodegradable vegetable oil to supply the Power Unit system. Learning to use a Fastlane takes only seconds. Turn the Fastlane on by pressing the On/Off button on your remote control. Position yourself on the wall opposite the Fastlane so that you can swim into the current. This will demonstrate how much room you must swim in and how the current's power increases as yo approach the Fastlane Swim Unit. When swimming, stay at least 12" from the Fastlane's front grill, so plan the reach of your stroke accordingly. While it is easy to look up and center yourself on the Fastlane, we recommend our optional plastic-backed stainless-steel floor mirror. Placed on the floor, it will help center you in the current as well as providing invaluable feedback on your stroke. When changing speed with your Up and Down buttons on your remote control, wait a few seconds for the current to adjust. Set the water speed at a comfortable level for your needs. Remember, since you are not turning, you will tire 20%-30% faster than when swimming laps. To stop swimming, simply swim out of the current. Press the On/Off button on your remote control to turn off the Power Unit. Restart if you wish by pressing the On/Off button. The Fastlane will return to your last speed. The Fastlane has a built in safety timer that shuts the current off after 30 minutes.
Few fitness activities rival swimming for cardiovascular and musculoskeletal benefits. Swimming works more muscle groups-simultaneously- than almost any other form of exercise. Swimming also burns as many calories as other aerobic sports without the associated dangers to muscles, bones, ligaments and joints due to stress and constant pounding. The Fastlane produces a smooth, even current adjustable to suit any swimmer. The top speed of approximately 57 second 100 yard pace challenges even the best swimmers.
The Fastlane adds a whole new dimension of fun to your pool. Not limited two swimming in place, the Fastlane is perfect for many activities- the possibilities are limited only by your imagination. Is your backyard pool long enough to train in? We didn't think so. The Fastlane simulates an open water swim much better than laps in a traditional pool. By eliminating turns you get a better understanding of your true open water endurance. What's more, by adding a Fastlane to your pool, you'll have the resources to do an entire triathlon in your neighborhood. The standard Fastlane has a top speed equivalent to a 52 minute Ironman pace. Our optional Hi-Performance current reduces that time to 43 minutes. So, unless you plan on breaking the record at Kona, you'll have more than enough horsepower.




Maintenance
Deep-Six has examined over 100 pools in New York and Florida. Yor pool may need refreshment. We suggest your pool should be examined at least once a year. That's our job. We want to look over your pool's good equipment, chemistry and the proper swimming function.
We examine the Power Unit and Cover pump for level and the color of hydraulic fluids
We examine the level of Nature2 in the water
We examine to pool interior parts for grounding
We examine the Chlorine, Bromine, CL Free, and see they have proper function
We examine pH at 7.2 - 7.5
We make sure the Alkalinity is 120 ppm
We check the Hardness for 180 ppm
We check the underwater Seal Lok Motor to see if it needs replacement
We check both the Sub-Hoses to see if they need to be replaced
We check the Zinc Sacrificial Anode to see if it need a replacement
We check that the Ultraviolet Bulb is working and and is less than one year old
We check the proper pool water level
CALL us. We will make an appointment for you.
dsddd
845-255-7446
© 2025. All rights reserved.